Строительные модули и дачные бытовки
Вид изнутри
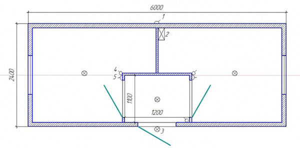
Планировки
Вид №1
Вид №2
Вид №3
Наши строительные модули и дачные
бытовки состоят из:
- металлического каркаса с утеплителем 100мм,
- снаружи оцинкованный профлист (цвет
по желанию клиента),
- внутри ДСП\ОСБ\ЛДСП (по желанию
клиента),
- электрика (розетки, выключатели, освещение),
- пластиковое окно (количество и размер
по желанию клиента),
- дверь российская, утепленная.
По желанию клиента мы можем укомплектовать строительный модуль,
дачную бытовку всей необходимой
мебелью.
Варианты размеров и цены:
6*2.4 метра - от 135 000 рублей
5*2.4 метра - от 120 000 рублей
4*2.4 метра - от 110 000 рублей
3*2.4 метра - от 95 000 рублей
2*2.4 метра - от 90 000 рублей
А так же мы можем изготовить
строительный модуль, дачную
бытовку по вашим размерам.
Окончательная цена зависит от ваших пожеланий и потребностей.
Made on
Tilda